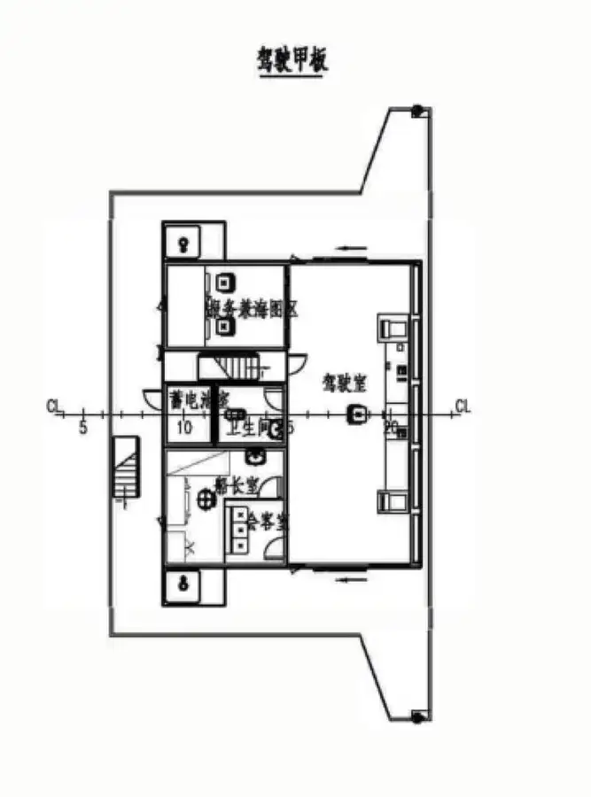
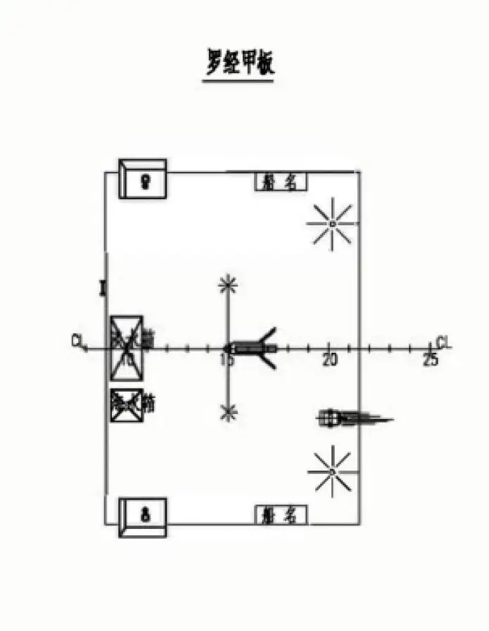
| 99.78m Self-Propelled LCT barge (2021) | |
| Ідентифікатор корабля | 10962 |
| Категорія | Балкер |
| Клас | CCS |
| Рік побудови | 2021 |
| Прапор | Нова Каледонія |
| Дата додавання судна | 2026-04-23 |
| Додав | SeaBoats |
Розміри корабля
| Загальна довжина (LOA), м | 99.78 |
| LBP | 93.6 |
| Тяга судна, м | 4.23 |
Додаткова інформація
| Самохідний |
| Подібні кораблі | Покажіть схожі кораблі |
| Запити | Збіг запитів на закупівлю |
| електронна пошта | Відправити лист |






